VG 5-2360-С
მოწყობილობის მოდელი: VG 5-2360-С
ერთიანი ზალპური ჩაშვება: ლ.
მოცულობა მ³/დღეში: 1.00
გამოყენებული ენერგია (კვტ/სთ დღე-ღამეში): -
მოწყობილობის ზომა: 1050X1050X2016 (მმ)
წონა (კგ): 131
მომხმარებელთა რაოდენობა X 5
პროდუქტის აღწერა
დანადგარებს იყენებენ ინდივიდუალურ საცხოვრებელი სახლებში (კოტეჯებში, საბაღო და სააგარაკო სახლებში) სამეურნეო-საყოფაცხოვრებო ჩამდინარე წყლების გასაწმენდად.
დანადგარებში რეალიზებულია თავისუფლად მცურავი, აერობულ და ანაერობულ პირობებში მოქმედი აუტოტროფული და ჰეტეროტროფული მიკროორგანიზმების ბიოცენოზებით ჩამდინარე წყლების წმენდის ეკოლოგიურად სუფთა ტექნოლოგია აეროტენკებში აქტიური შლამის კონცენტრაციის შენარჩუნებით და ჭარბი შლამის ხანგრძლივი სტაბილიზაციით.
დანადგარები დამზადებულია с EC-12566 98124076-2017-ის შესაბამისად. წმენდის პროცესში მიიღწევა მაჩვენებლები, რომლებიც შეესაბამება EC 2.1.5.980-00 მოთხოვნებს. „ჰიგიენური მოთხოვნები ზედაპირული წყლების დაცვის მიმართ“ .

1. თმის საჭერი
2. ცხიმსაჭერი (ბიოლოგიური აფსკის მოსაგროვებლად В კამერის ზედაპირიდან და Б კამერაში გადასაცემად)
3. მამშვიდებელი
4. ცირკულარული ტუმბო
5. მთავარი ტუმბო
6. რეცირკულარული ტუმბო
7. შლამის ტუმბო (გამოიყენება ჭარბი შლამის ამოსატუმბავად სერვისული მომსახურების დროს)
8. მეორადი სალექარის გაქრევა
9. დონის გადამწოდი
10. კომპრესორი
11. ელექტრომაგნიტური სარქველი
12. დანადგარის მართვის ბლოკი
13. მსხვილი ფრაქციების ფილტრი
14. სუფთა წყლის ფილტრი 15. მცირე მამშვიდებელი

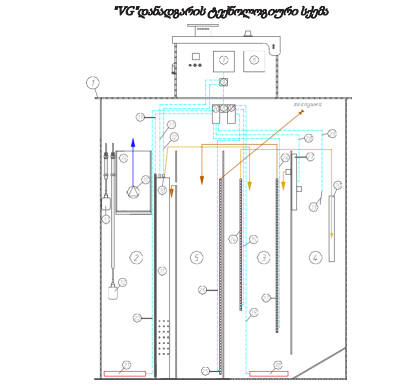
წყლის ბიოლოგიური წმენდის დანადგარის მოწყობა ახსნილია ნახაზზე. პოზიციებით ნახაზზე აღნიშნულია დანადგარის შემდეგი კვანძები და დეტალები:
1. დანადგარის კორპუსი;
2. მიმღები კამერა;
3. აეროტენკი;
4. მეორადი სალექარი;
5. შლამის სტაბილიზატორი;
6. მართვის ბლოკი;
7. კომპრესორი
8. ელექტრომაგნიტური სარქველი;
9. ტურბო-გამანაწილებელი;
10. მთავარი ტუმბო;
11. მსხვილი ფრაქციების ფილტრი;
12. მთავარი ტუმბოს ჰაერსადენი;
13. ტუმბოს გაქრევის ჰაერსადენი;
14. ცირკულარული ტუმბო;
15. ცირკულარული ტუმბოს ჰაერსადენი;
16. პირდაპირი ფაზის გამანაწილებელი;
17. მსხვილი ფრაქციების ფილტრის გაქრევის ჰაერსადენი;
18. აეროტენკის აერატორი;
19. აეროტენკის აერატორის ჰაერსადენი;
20. უკუფაზის გამანაწილებელი;
21. მიმღები კამერის აერატორი;
22. მიმღები კამერის აერატორის ჰაერსადენი;
23. რეცირკულარული ტუმბო;
24. რეცირკულარული ტუმბოს ჰაერსადენი;
25. შლამის ტუმბო; 26. შლამის ტუმბოს ჰაერსადენი;
27. ცხიმსაჭერი; 28. ცხიმსაჭერის ჰაერსადენი;
29. მეორადი სალექარის გაქრევის ჰაერსადენი;
30. მამშვიდებელი;
31. მეორადი სალექარის გაქრევა;
32. დონის ტივტივა გადამწოდი, მუშა;
33. დონის ტივტივა გადამწოდი, საავარიო;
34. სუფთა წყლის ტევადობა;
35. დრენაჟის ტუმბო
სამონტაჟო სქემა

სამუშაო პროცედურა:
1. 1.50x1.50მ ზომის, h=2.31მ ზომის ორმოს გათხრა ნიადაგის დახრილობის (ორმოს დახრილობის ზომა დამოკიდებულია ნიადაგის ტიპზე) ან ყალიბის გამოყენებით;
2. ქვიშის მომზადების უკუჩაყრა და დატკეპნა 150 მმ სისქით;
3. აგრეგატის დატკეპნილ ქვიშის ფენაზე დამონტაჟება;
4. მილსადენებისა და ელექტრო კაბელების შეჭრა და მათთან მიერთება;
5. იზოლაციის მონტაჟი (იზოლაციის საჭიროება, ბრენდი და სისქე დამოკიდებულია სამშენებლო ტერიტორიის კლიმატურ პირობებზე);
6. ქვიშით უკუჩაყრა ფენა-ფენა დატკეპნით ყოველ 0.2 მ-ში და თითოეულ ფენაზე წყლის დასხმა, გამწმენდი ნაგებობის შიდა კედელზე მონიშნულ ნიშნულებამდე განყოფილებების წყლით შევსების პარალელურად;
7. რელიეფის საბოლოო დაგეგმვა;
8. გამწმენდი ნაგებობის გაშვება ხორციელდება მისი მუშაობის შემოწმების შემდეგ ხელით რეჟიმში, საკონტროლო ბლოკში სადგურის მუშაობის პირდაპირი და საპირისპირო ფაზის გადამრთველებით, ასევე მუშაობის ავტომატური რეჟიმისა და საგანგებო სიტუაციების შემოწმებით.
სიგნალიზაცია მცურავი სენსორების დონის იძულებითი ცვლილებით.
